欢迎来到河北金菲特新型建材有限公司官网!
在线留言
联系我们
装配式别墅
品质生活定制专家
全国咨询热线:
400-805-6158
网站首页
关于我们
公司简介
企业文化
轻钢别墅
产品介绍
结构体系
施工流程
应用范围
重钢别墅
产品介绍
重钢结构
应用范围
产品优势
性能优势
工艺优势
产品中心
一层户型
二层户型
三层户型
四合院户型
工程案例
新农村自建房
景区别墅
度假村别墅
生态木屋
合作中心
市场前景
合作优势
营销策略
支持保障
新闻中心
企业新闻
行业动态
联系我们
联系我们
在线留言
一层户型
二层户型
三层户型
四合院户型
您当前的位置是
:
网站首页
>
产品中心
>
标准户型
>
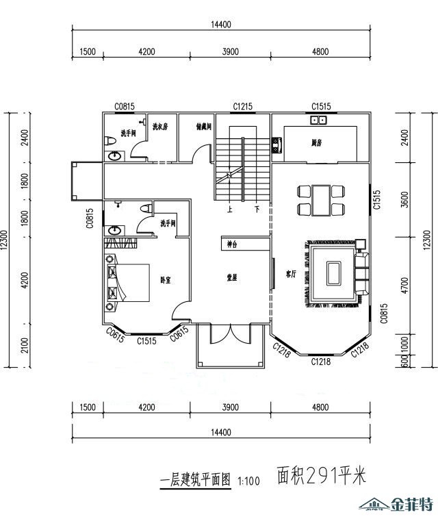
爱森堡
日期:2021-05-16 浏览次数:
上一篇:
加州阳光
下一篇:
康宁雅苑
快捷导航
网站首页
关于我们
轻钢别墅
重钢别墅
产品优势
产品中心
工程案例
合作中心
新闻中心
联系我们
联系方式:
手 机:0318-6107888
邮 箱:1972126857@qq.com
地 址:衡水路北经济开发区经八大街889号
友情链接:
咨询电话:
400-805-6158
0318-6107888
微信扫码 关注我们
Copyright © 河北金菲特新型建材有限公司 版权所有 备案号:
冀ICP备19001846号-1
CNZZ访问统计